Imagine 101

Casa individuala cu 4 camere si Carport de vanzare in Selimbar

ID: P41 Sibiu, Selimbar 244
240.000€
Descriere
Va propunem spre vanzare o casa individuala cu 4 camere, Carport si teren de 245 mp in Selimbar.

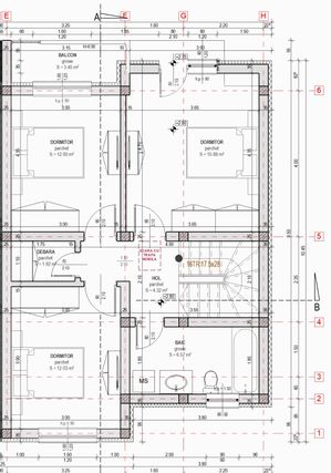
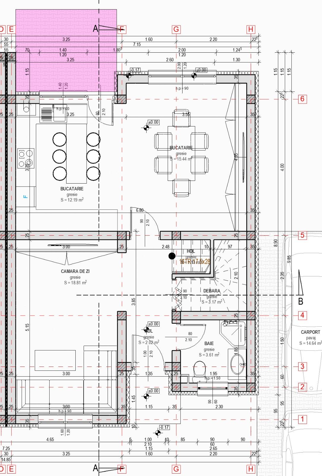
Locuinta dispune de suparafata utila de 120 mp dispusa pe Parter si Etaj, suplimentar mai dispune si de pod(planseul etajului fiind din beton)

Parterul casei este compus din:

- hol la intrare
- camera de zi
- bucatarie cu loc de luat masa
- spatiu depozitare sub casa scarii
- baie
- casa scarii
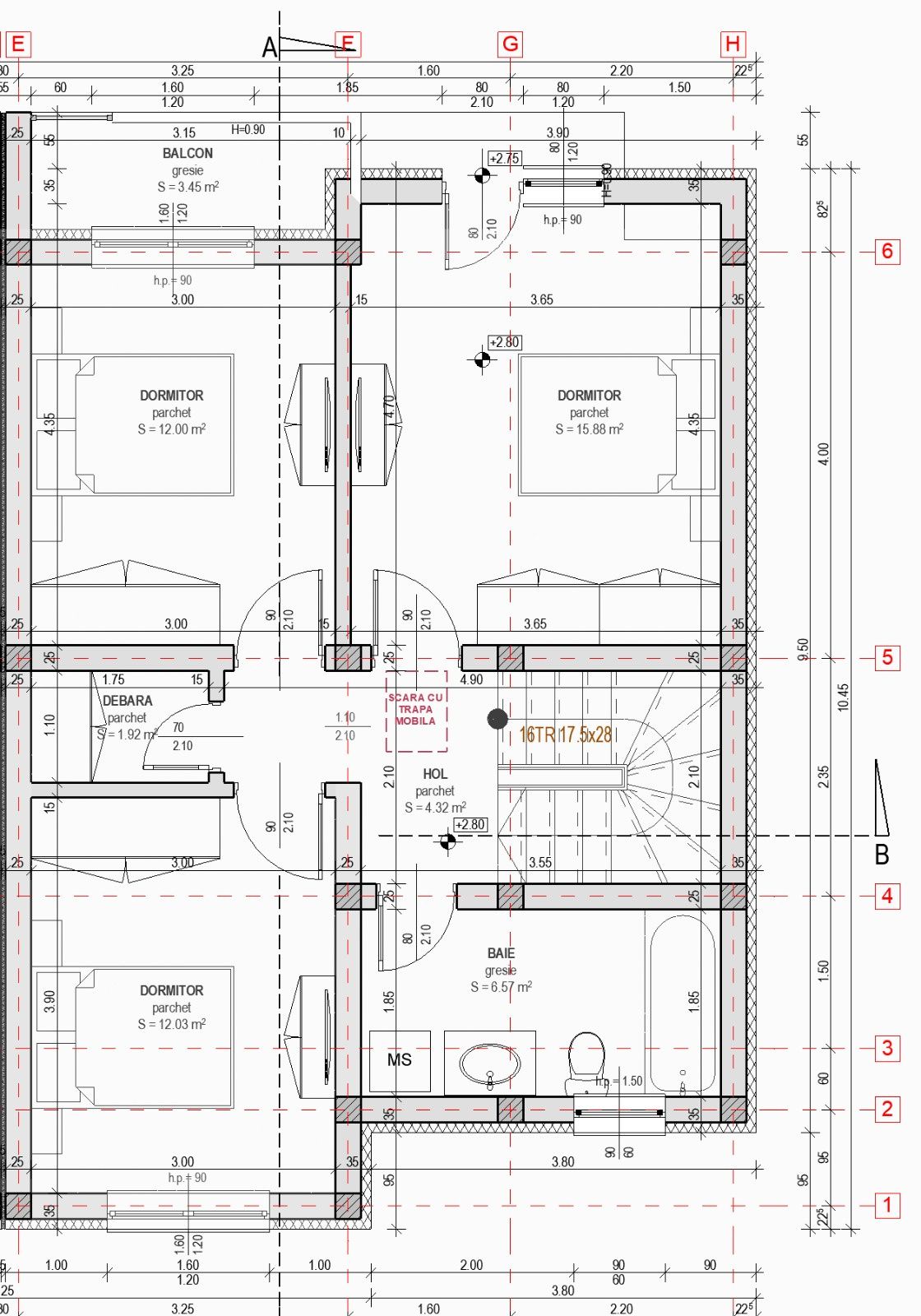
Etajul este compus din :

- hol
- 3 dormitoare
- spatiu depozitare
- baie
Locuinta se va preda la interior la stadiul de gri avansat cu centrala termica cu incalzire in pardoseala, sape, instalatiile sanitare si electrice pe pozitie, tamplarie PVC cu 3 foi de sticla, usa PVC la intrare, peretii tencuiti si gletuiti. Exteriorul se va preda la cheie cu gard metalic, poarta auto si pietonala, pavaj in zonele pentru acces auto si pietonal.
La cerere casa se poate preda la stadiul de cheie.

Pretul de vanzare al acestei case este 240.000 Euro.
Caracteristici
  • ID:P41
  • Nr. camere:4
  • Nr. dormitoare:3
  • S. utila:120.00 mp
  • S. terase:16.00 mp
  • S. construita:140.00 mp
  • S. teren:245.00 mp
  • Nr. bucatarii:1
  • Nr. bai:2
  • Nr. parcari:2
  • Front stradal:12.00 m
  • Nr. fronturi:2
  • An constructie:2025
  • Structura rezistenta:Caramida
  • Regim inaltime:P+1
  • Orientare:Sud-Est
Specificatii
Curent
Apa
Canalizare
Gaz
Fibra optica
Centrala imobil
Incalzire pardoseala
Izolatie Exterior
Vopsea lavabila
Ferestre PVC
Usa intrare PVC
Spatiu depozitare
Apometre
Contor gaz
Nemobilat
Localizare
Cosmin Morar
Esti interesat de aceasta proprietate ?
Proprietati similare
TOP 0% comision Imagine 514
De vanzare casa individuala cu 4 camere in Selimbar
Sibiu, Selimbar 240.000€
4 camere 2 bai 120mp
TOP 0% comision Imagine 202
Casa individuala pe un singur nivel de vanzare zona Strand
Sibiu, Strand 230.000€
3 camere 2 bai 105mp
TOP 0% comision Imagine 32
De vanzare casa individuala pe un singur nivel in Sibiu
Sibiu, Strand 230.000€
3 camere 2 bai 105mp